Описание недвижимости
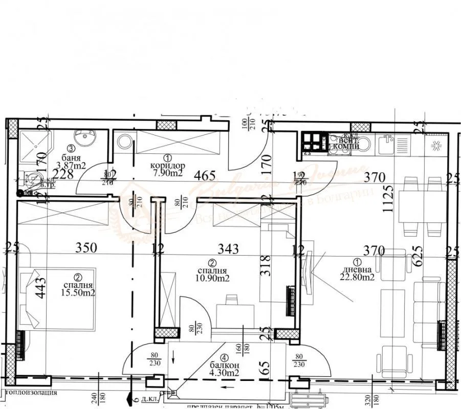
Предлагаем к продаже квартиру с двумя спальнями в самом центре морской столицы Болгарии - городе Варна. Недвижимость в Варне от застройщика. с возможностью рассрочки.Центр города известен своими достопримечательностями: Успенский собор, Варненская опера, Археологический музей, шикарная историческая часть, в которой сохранилась эпоха римского правления.Описание квартиры: квартира No3 находится на 2 этаже из 8. Состоит из гостиной с кухней, 2 спален, ванной комнаты с туалетом, коридора и балкона. Общая площадь квартиры составляет 103,65 кв.м.К квартире прилагается подвальное помещение площадью 5,12 кв.м.В доме для удобства расположена закрытая парковка, магазин.Отличная транспортная развязка, автобусные остановки, быстро и доступно можно попасть в любой район города.Прекрасная инфраструктура, все в шаговой доступности: школы, детские сады, рестораны, магазины, супермаркеты, детские площадки, больницы.Квартира продается по БДС - черновая отделка, с возможностью покупки под ключ.Начало строительства – март 2023 г., Завершение – март 2025 г.

165 840 €

1 610 € м²

Номер Обявления:

#11556

Варна

2 спальни

103.00 м²

Рынок:

первичный

Тип недвижимости:

Апартамент

Остались Вопросы?
Уточнить детали по обекту

Похожие объекты

Трехкомнатный апартамент в комплексе Sweet Homes 1, Солнечный берег

165 000 €

1 755 € м²

2 спальни

94.00 м²

Недвижимость у моря

Солнечный Берег

Трехкомнатный апартамент на этапе строительства в городе Варна, Галата

173 700 €

1 654 € м²

2 спальни

105.00 м²

Городская недвижимость

Варна

Трехкомнатный апартамент в новом жк в Варне - на этапе строительства

160 000 €

1 416 € м²

2 спальни

113.00 м²

Городская недвижимость

Варна

Отзывы

Слова благодарности, которые нас вдохновляют!

Ирина Бишкек
Ирина Бишкек

Все просто супер!!!

Ирина Орлова
Ирина Орлова

Покупала через агентство 2 объекта недвижимости. Очень довольна. Спасибо за профессионализм и оперативность.

Раиса Хайбуллина
Раиса Хайбуллина

Выражаю огромную благодарность Евгении за помощь в поиске и приобретении аппартамента. Евгения обладает всеми качествами профессионального риэлтора.

Anna Shmidova
Anna Shmidova

Хочу поблагодарить Евгению и Дмитрия прежде всего за их профессионализм: за быстрый подбор и точное понимание того, что ожидает клиент.

Andriy Khvorost
Andriy Khvorost

Огромная благодарность Евгении за её работу! Два года тому назад решили приобрести домик у моря в Болгарии.

Mike Mike
Mike Mike

Общение с сотрудниками компании Болгария Авеню оставили самые приятные впечатления. Ребята в своей работе выходят далеко за рамки того, что делают обычные риэлторы.

Наталья Лютикова
Наталья Лютикова

Профессионалы своего дела! Лучшие из лучших, могу сказать с уверенностью после большого опыта поиска недвижимости.

Бесплатная консультация

Получите бесплатную консультацию от наших экспертов по болгарской недвижимости уже сегодня.

Предпочитаемый способ связи::

Отправляя эту форму, вы соглашаетесь с нашей политикой конфиденциальности. Мы свяжемся с вами в течение 24 часов. политикой конфиденциальности. Мы свяжемся с вами в течение 24 часов.

Срочная продажа

Оставьте заявку — и мы свяжемся с вами в течение часа.

Файлы не выбраны

Максимальный размер файла:: 10 МБ.

Разрешённые типы файлов:: png gif jpg jpeg.

Размер изображений должен быть между 150x150 и 1500x1500 пикселами.

Отправляя эту форму, вы соглашаетесь с нашей политикой конфиденциальности. Мы свяжемся с вами в течение 24 часов. политикой конфиденциальности. Мы свяжемся с вами в течение 24 часов.